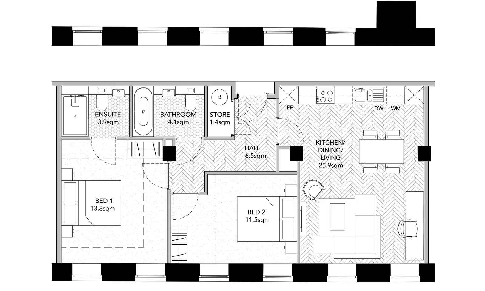
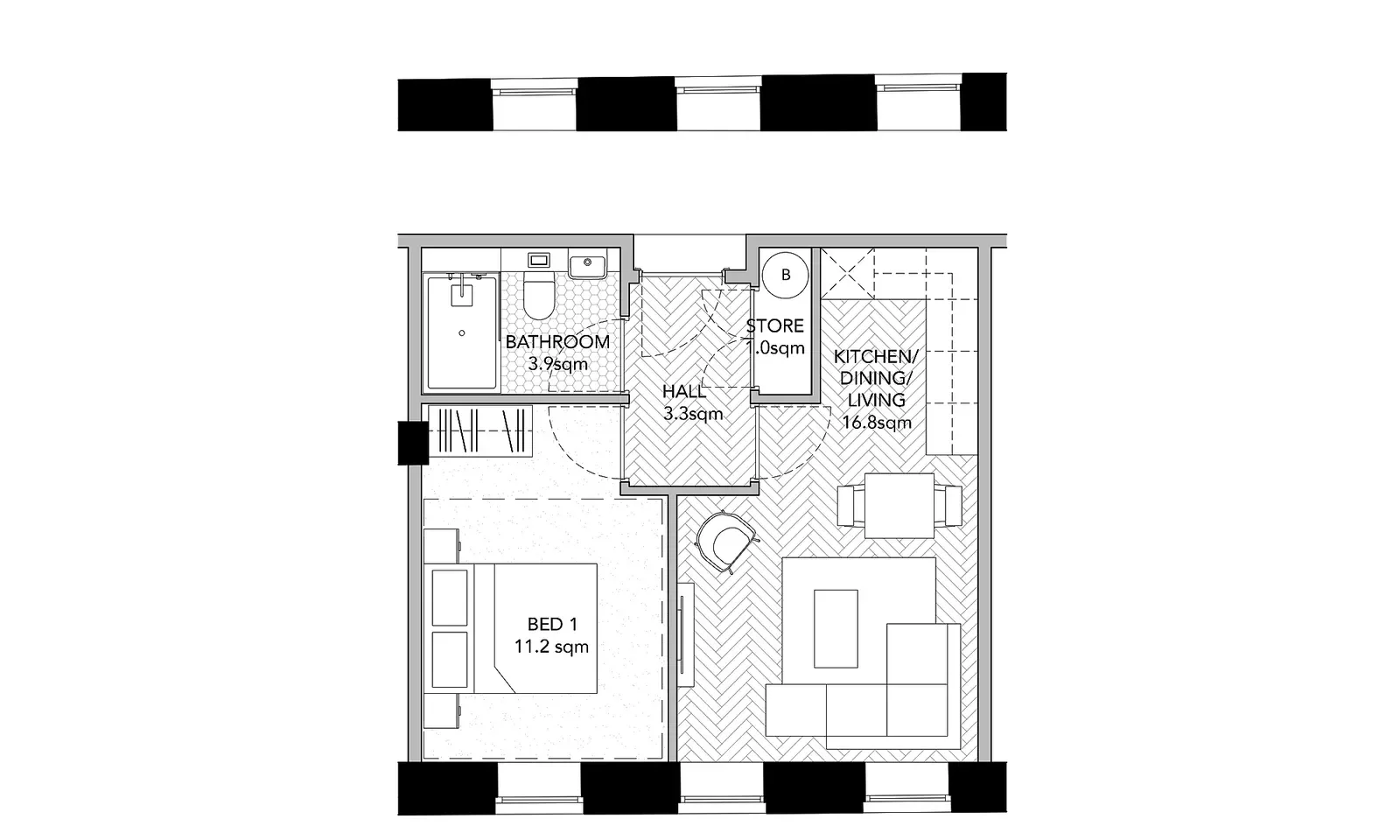
Oxford Mill

This late 19th-century silk mill has been sensitively converted into contemporary one and two bedroom apartments, carefully balancing the retention of historic character with the demands of modern living. The original historic character is preserved, as the backdrop for new generous open-plan kitchen, living and dining spaces. Upper levels are designed as loft-style homes, making full use of the building’s volume and structure to create light-filled, characterful living spaces.

A fabric-first retrofit approach underpins the project. Breathable lime plaster and woodfibre insulation have been introduced to external walls to improve thermal and acoustic performance while allowing the solid brick walls to breathe. This supports the long-term health of the historic structure. Secure cycle storage, electric bike charging and well-integrated recycling facilities support sustainable, practical living, delivering contemporary standards within a carefully conserved heritage building.

Previous
Previous

Monochrome Home

Next
Next

Chapel House