Monochrome Home

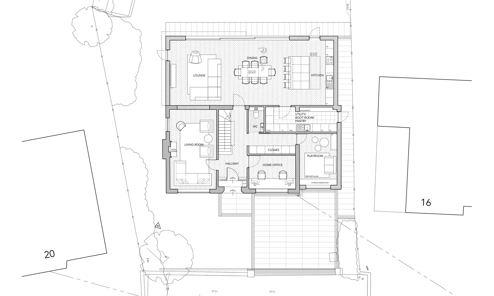
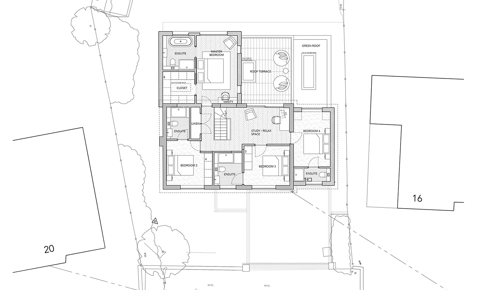
This project comprises a comprehensive renovation and extension of a family home, responding to the needs of a growing household. The interior has been fully reconfigured to create a sequence of open-plan kitchen, dining, living, play and utility spaces, alongside additional bedroom accommodation and a new master suite. Full-height glazing and a rationalised layout strengthen the relationship with the garden, introducing improved daylight, views and a greater sense of openness to everyday life.

The front elevation and street-facing character are retained, respecting the established context and reinforcing the home’s presence within the street. To the rear, the architectural language is far more contemporary, clearly legible as new interventions. A restrained material palette, clean lines and careful detailing throughout ensure a home that is functional, comfortable and well-suited to long-term effotless family living.

“Sophie & Rhys have been friendly, professional, supportive and thoughtful in their approach throughout. We loved their array of solutions for our home in the first stage, and really appreciated their guidance on pragmatics, sustainability and balancing costs throughout the process.”

— M B

Previous
Previous

Derby Road

Next
Next

Oxford Mill